井草サマリヤマンション

取引有効期限:2026/05/06   物件更新日:2026/04/14   次回更新予定日:2026/04/29   物件No.39941

角部屋 / ペット可 / ルーフバルコニー / 陽当り良好 / システムキッチン / 追焚き給湯 / 浄水器 / エアコン / TVインターホン / 防犯カメラ

内覧か来社でJCBギフトカード1000円分プレゼント

こちらは最寄り駅「西武新宿線 下井草駅」まで徒歩1分にある、駅近の中古マンションのご紹介です。
◆現在空室◆いつでも内覧可◆即引渡し可◆
◆室内リフォーム物件◆
■駅まで徒歩1分
■南向き、日照・眺望良好
■長期修繕計画あり
■令和7年11月7日リノベーション完了予定
・システムキッチン・ユニットバス(浴室乾燥暖房機能付)・トイレ(温水洗浄機能付)・洗面化粧台・洗濯パン・給湯器(追い焚き付)・エアコン1基・下足入れ・レースカーテン・建具・照明新規取付・フローリング・クロス新規張替

※土日平日問わず現地へのご案内や、資金計画表の作成相談できます。「来店予約」「見学予約」からお申込みください※

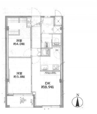
所在地 東京都杉並区井草1丁目 間取り 2DK
交通 西武新宿線 下井草駅 徒歩2分 その他交通
専有面積 48.60m² バルコニー面積 6.48m²
所在階 9階 構造・規模 鉄骨鉄筋コンクリート造 13階建 (地上13階)
価格 3,680万円 管理費 0.9万円/月
修繕積立金 1.5万円/月 向き 南西
築年月 1973年7月築(築52年) リフォーム
現況(引渡時期) 空室(2026年3月下旬) 総戸数
引渡時期 期日指定有 管理形態 日勤
駐車スペース なし 権利種類はてな 所有権
建物名 井草サマリヤマンション 取引態様 媒介
小学校区 杉並区立八成小学校:徒歩7分(500m) 中学校区 杉並区立中瀬中学校:徒歩12分(900m)
その他周辺環境
モール
西武井荻商店街:徒歩12分(911m)
コンビニ
ローソン 下井草駅前店:徒歩3分(167m)
スーパー
Santoku下井草店:徒歩2分(140m)
幼稚園・保育園
大空と大地のなーさりぃ下井草駅前園:徒歩1分(62m)
公園1
井草さくら公園:徒歩2分(140m)
公園2
正保公園:徒歩4分(272m)
総合病院
杉並すだクリニック:徒歩2分(84m)
内科
なかがわ内科クリニック:徒歩3分(184m)
小児科
伊東医院:徒歩3分(192m)
歯科
きとう歯科クリニック:徒歩1分(33m)
動物病院
いぐさ動物病院:徒歩5分(383m)
市・区役所
杉並区役所 井草地域区民センター:徒歩13分(1012m)
その他
お急ぎの場合はお電話にてご連絡ください。
お電話でのお問い合わせは0120-063-630(携帯・PHS可)
兼六不動産株式会社
東京都練馬区大泉学園町1丁目29-7
営業時間:AM9:00~PM8:00/定休日:年末年始のみ
免許番号:東京都知事(5)第83428号
兼六グループの兼六不動産株式会社

練馬区を中心に確かな不動産情報をスピーディーにお伝え致します。住まいの事ならどんな事でもお気軽にご相談下さい。

接客力ランキング オンライン内見サービス

クイック問い合わせ

30秒で簡単に入力ができます

プライバシーポリシー必須は必須項目になります

お問い合わせ内容必須
(複数選択可)
お名前(漢字)必須
お名前(フリガナ)
メールアドレス必須
電話番号必須
ご住所
〒   - 
備考欄

ご希望の条件、物件案内ご希望日、ご質問などがございましたらご記入ください。

確認画面へ

※価格は物件の代金総額を表示しており、消費税が課税される場合は税込み価格です。(1000円未満は切り上げ。)
※完成予想図はいずれも外構、植栽、外観等実際のものとは多少異なることがあります。
※CG合成の画像の場合、実際とは多少異なる場合があります。
※購入の前には物件内容や契約条件についてご自身で十分な確認をしていただくようにお願いいたします。

条件の近いマンション

同じ杉並区井草のマンション

杉並区井草のマンションの一覧

マンション

杉並区井草2丁目 7,780万円
杉並区井草2丁目
7,780万円
西武新宿線 井荻駅

同じ杉並区で同じ価格帯3,500~4,000万円のマンション

杉並区の同価格帯のマンションの一覧

マンション

杉並区阿佐谷北4丁目 3,880万円
杉並区阿佐谷北4丁目
3,880万円
中央線 阿佐ヶ谷駅

マンション

杉並区阿佐谷北4丁目 3,680万円
杉並区阿佐谷北4丁目
3,680万円
中央線 阿佐ヶ谷駅

マンション

杉並区下井草5丁目 3,880万円
杉並区下井草5丁目
3,880万円
西武新宿線 井荻駅
現地見学会(オープンハウス)情報
オープンハウス情報を全て見る

3月1日(日) ~ 5月31日(日)

19.25帖の広々LDKはご家族が自然と集まる憩いの空間
3SLDK+ウォーク・イン・クローゼット

3月1日(日) ~ 6月30日(火)

練馬区谷原4丁目の石神井公園の家
石神井公園駅・光ヶ丘駅の2駅利用可
お客様の声
ご希望条件を登録しておいていただければ、条件に合った物件が売りに出た際に、どこよりも早く、自動的にご指定のアドレスに通知が届きます。

杉並区井草1丁目のマンションの不動産探しは兼六不動産株式会社

兼六不動産のホームページに掲載されている不動産以外にも、杉並区井草1丁目のマンションの会員限定情報があるかもしれません。是非お気軽にお問い合わせください。
又、下井草駅周辺の不動産はもちろん、西武新宿線沿線の不動産情報も数多く掲載しております。さらに、エリア検索や駅検索以外にも、リビング15畳以上、ワイド・ルーフバルコニー付き、公園まで徒歩10分以内、駐車場2台以上、最寄駅から徒歩10分以内などのこだわりのテーマでも杉並区井草1丁目の不動産を検索出来ますので、是非兼六不動産のホームページをご活用いただき、理想の不動産を見つけてください。
尚、なかなかお目当ての不動産が見付からない場合やこだわりの条件がある場合など、当社にご条件をお伝え頂けば、杉並区井草1丁目の会員限定情報も含めて、誠心誠意探させて頂きます。お気軽に、メール、またはお電話を頂ければ幸いです。
その他、杉並区井草1丁目の小学校・中学校などの学区情報も掲載しておりますので、併せてご参考にしてください。

建ぺい率とは

建ぺい率とは敷地面積に対する建築面積の割合のことです。つまりその敷地に対してどれくらいの規模の建物が建てられるか、また、逆にどれくらいの空き地を確保しなければならないのか、という割合のことで用途地域ごとに制限されています。
建ぺい率が高ければ敷地いっぱいに建物を建てることが可能です。逆に低ければ敷地に空いているスペースを多く設けなければいけません。住居系の用途地域は比較的建ぺい率が低く、商業系の用途地域は建ぺい率が高くなっています。

容積率とは

容積率とは敷地面積に対する建物の延床面積の割合のことです。つまり、その敷地に対してどれくらいの規模(床面積)の建物が建てられるか、という割合のことで、これも建ぺい率と同じく用途地域ごとに制限されています。
容積率100%の地域で、敷地面積50坪の場合、延べ床面積50坪まで建てられることになります。

用途地域とは

都市の土地利用計画の一つで、第1種低層住居専用地域から工業専用地域までの12種類の用途地域が定められており、地域ごとに建築可能な建築物の用途を制限しております。周辺環境を知る目安にもなります。

接道とは

接道とは、その土地と接している道路の事を指します。接道の問題は、土地探しにおいて重要な問題であり、建築基準法上の道路として認められた道と、土地が接することで、建物を建てられる土地になります。

権利種類とは

対象物件の敷地が「所有権」「賃借権・地上権」「定期借地権」のいずれにあてはまるかを表します。

QRコード