車2台の春日町のLDK18.30帖のデザイナーズ住宅

物件更新日:2020/08/18   次回更新予定日:2020/09/02   物件No.8157

本物件の掲載は終了しました。
検索条件を変えて再度検索してみてください。

LDK15帖以上 / 都市ガス / 床暖房 / バリアフリー仕様 / ウォークインクローゼット / 食器洗浄機 / 浴室暖房乾燥機 / 小学校800m以内 / 保育園・幼稚園800m以内 / スーパー・コンビニ400m以内 / 公園800m以内 / 陽当り良好 / 平坦地 / カウンターキッチン / 全室フローリング / 可動間仕切り / 各室収納スペース / バルコニー / 複層ガラス / モニター付インターホン / 外壁サイディング / 閑静な住宅街 / 駐車場2台分 / 24時間換気システム / バス1坪以上 / 低層住居専用地域

内覧か来社でJCBギフトカード1000円分プレゼント
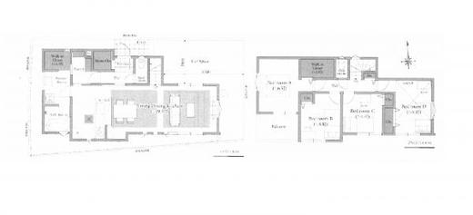
所在地 東京都練馬区春日町4丁目 間取り 3LDK
交通 都営大江戸線 練馬春日町駅 徒歩8分 その他交通 都営大江戸線 光が丘駅 徒歩20分 東京メトロ有楽町線 平和台駅 徒歩17分
土地面積 96.33m² 公簿 建物面積 96.18m²
駐車スペース 2台 構造・規模 木造 2階建 (地上2階)
価格 6,499万円 借地料
販売戸数 今回販売 1棟/全 1棟 完成時期・築年・入居 2020年4月完成済
引渡時期 国土法届出 不要
地目 宅地 用途地域はてな 第一種低層住居専用地域
建ぺい率はてな 50% 容積率はてな 100%
都市計画 権利種類はてな 所有権
接道はてな 南4.0M道路 取引態様 媒介
小学校区 練馬区立練馬東小学校:徒歩11分(817m) 中学校区 練馬区立練馬東中学校:徒歩8分(561m)
その他周辺環境
モール
光が丘IMA 南館:徒歩21分(1653m)
コンビニ
セブンイレブン 練馬春日町4丁目店:徒歩5分(357m)
幼稚園・保育園
寿福寺第二幼稚園:徒歩3分(232m)
公園1
春日町さつき緑地:徒歩7分(509m)
公園2
ばなな公園:徒歩13分(1019m)
総合病院
さいとうクリニック:徒歩10分(749m)
内科
宮野循環器内科:徒歩3分(197m)
歯科
増田歯科医院:徒歩2分(156m)
市・区役所
練馬区光が丘区民事務所:徒歩21分(1608m)
設備 ガス:都市ガス/水道:公営水道/排水:公共下水/雑排水:公共下水
その他
お急ぎの場合はお電話にてご連絡ください。
お電話でのお問い合わせは0120-063-630(携帯・PHS可)
兼六不動産株式会社
東京都練馬区大泉学園町1丁目29-7
営業時間:AM9:00~PM8:00/定休日:年末年始のみ
免許番号:東京都知事(5)第83428号
兼六グループの兼六不動産株式会社

練馬区を中心に確かな不動産情報をスピーディーにお伝え致します。住まいの事ならどんな事でもお気軽にご相談下さい。

接客力ランキング オンライン内見サービス

条件の近い新築一戸建て

最寄駅が練馬春日町駅の新築一戸建て

練馬春日町駅の新築一戸建ての一覧

新築一戸建て

練馬区春日町5丁目 7,980万円
練馬区春日町5丁目
7,980万円
都営大江戸線 練馬春日町駅

新築一戸建て

練馬区春日町5丁目 8,080万円
練馬区春日町5丁目
8,080万円
都営大江戸線 練馬春日町駅

新築一戸建て

練馬区春日町5丁目 8,380万円
練馬区春日町5丁目
8,380万円
都営大江戸線 練馬春日町駅

新築一戸建て

練馬区高松1丁目 7,680万円
練馬区高松1丁目
7,680万円
都営大江戸線 練馬春日町駅

同じ練馬区春日町の新築一戸建て

練馬区春日町の新築一戸建ての一覧

新築一戸建て

練馬区春日町5丁目 7,980万円
練馬区春日町5丁目
7,980万円
都営大江戸線 練馬春日町駅

新築一戸建て

練馬区春日町5丁目 8,080万円
練馬区春日町5丁目
8,080万円
都営大江戸線 練馬春日町駅

新築一戸建て

練馬区春日町5丁目 8,380万円
練馬区春日町5丁目
8,380万円
都営大江戸線 練馬春日町駅

新築一戸建て

練馬区春日町4丁目 6,550万円
練馬区春日町4丁目
6,550万円
都営大江戸線 練馬春日町駅

同じ練馬区で同じ価格帯6,000~6,500万円の新築一戸建て

練馬区の同価格帯の新築一戸建ての一覧

新築一戸建て

練馬区関町北3丁目 6,380万円
練馬区関町北3丁目
6,380万円
西武新宿線 武蔵関駅

new新築一戸建て

練馬区南田中4丁目 6,430万円
練馬区南田中4丁目
6,430万円
西武池袋線 練馬高野台駅

new新築一戸建て

練馬区南田中4丁目 6,480万円
練馬区南田中4丁目
6,480万円
西武池袋線 練馬高野台駅

new新築一戸建て

練馬区南田中4丁目 6,480万円
練馬区南田中4丁目
6,480万円
西武池袋線 練馬高野台駅
現地見学会(オープンハウス)情報
オープンハウス情報を全て見る

6月21日(土) ~ 11月30日(日)

≪見学30分~≫全棟4LDK&ZEH水準&床暖房&食洗機!
練馬区大泉学園町で家族と一緒に新しく、永く住まう棲家

7月1日(火) ~ 9月30日(水)

練馬区谷原4丁目の石神井公園の家
石神井公園駅・光ヶ丘駅の2駅利用可
お客様の声
ご希望条件を登録しておいていただければ、条件に合った物件が売りに出た際に、どこよりも早く、自動的にご指定のアドレスに通知が届きます。

練馬区春日町4丁目の新築一戸建ての不動産探しは兼六不動産株式会社

兼六不動産のホームページに掲載されている不動産以外にも、練馬区春日町4丁目の新築一戸建ての会員限定情報があるかもしれません。是非お気軽にお問い合わせください。
又、練馬春日町駅周辺の不動産はもちろん、都営大江戸線沿線の不動産情報も数多く掲載しております。さらに、エリア検索や駅検索以外にも、リビング15畳以上、ワイド・ルーフバルコニー付き、公園まで徒歩10分以内、駐車場2台以上、最寄駅から徒歩10分以内などのこだわりのテーマでも練馬区春日町4丁目の不動産を検索出来ますので、是非兼六不動産のホームページをご活用いただき、理想の不動産を見つけてください。
尚、なかなかお目当ての不動産が見付からない場合やこだわりの条件がある場合など、当社にご条件をお伝え頂けば、練馬区春日町4丁目の会員限定情報も含めて、誠心誠意探させて頂きます。お気軽に、メール、またはお電話を頂ければ幸いです。
その他、練馬区春日町4丁目の小学校・中学校などの学区情報も掲載しておりますので、併せてご参考にしてください。

建ぺい率とは

建ぺい率とは敷地面積に対する建築面積の割合のことです。つまりその敷地に対してどれくらいの規模の建物が建てられるか、また、逆にどれくらいの空き地を確保しなければならないのか、という割合のことで用途地域ごとに制限されています。
建ぺい率が高ければ敷地いっぱいに建物を建てることが可能です。逆に低ければ敷地に空いているスペースを多く設けなければいけません。住居系の用途地域は比較的建ぺい率が低く、商業系の用途地域は建ぺい率が高くなっています。

容積率とは

容積率とは敷地面積に対する建物の延床面積の割合のことです。つまり、その敷地に対してどれくらいの規模(床面積)の建物が建てられるか、という割合のことで、これも建ぺい率と同じく用途地域ごとに制限されています。
容積率100%の地域で、敷地面積50坪の場合、延べ床面積50坪まで建てられることになります。

用途地域とは

都市の土地利用計画の一つで、第1種低層住居専用地域から工業専用地域までの12種類の用途地域が定められており、地域ごとに建築可能な建築物の用途を制限しております。周辺環境を知る目安にもなります。

接道とは

接道とは、その土地と接している道路の事を指します。接道の問題は、土地探しにおいて重要な問題であり、建築基準法上の道路として認められた道と、土地が接することで、建物を建てられる土地になります。

権利種類とは

対象物件の敷地が「所有権」「賃借権・地上権」「定期借地権」のいずれにあてはまるかを表します。

QRコード