西東京市中町4丁目(戸建)E

物件更新日:2020/08/16   次回更新予定日:2020/08/31   物件No.100704151

本物件の掲載は終了しました。
検索条件を変えて再度検索してみてください。

都市ガス

内覧か来社でJCBギフトカード1000円分プレゼント
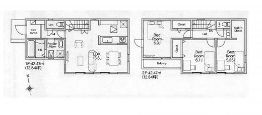
所在地 東京都西東京市中町4丁目 間取り 3LDK
交通 西武新宿線 東伏見駅 徒歩11分 その他交通 西武池袋線 保谷駅 徒歩20分
土地面積 102.08m² 実測 建物面積 80.10m²
駐車スペース あり 構造・規模 木造 2階建 (地上2階)
価格 4,180万円 借地料
販売戸数 今回販売 1棟/全 5棟 完成時期・築年・入居 2020年6月完成済(空室)
引渡時期 相談 国土法届出 不要
地目 宅地 用途地域はてな 第一種低層住居専用地域
建ぺい率はてな 40% 容積率はてな 80%
都市計画 市街化区域 権利種類はてな 所有権
接道はてな 南4.0M道路 取引態様 媒介
小学校区 西東京市立碧山小学校:徒歩5分(350m) 中学校区 西東京市立明保中学校:徒歩12分(930m)
その他周辺環境
総合病院
保谷厚生病院:徒歩23分(1820m)
設備 ガス:都市ガス/水道:公営水道/排水:公共下水/雑排水:公共下水
その他
お急ぎの場合はお電話にてご連絡ください。
お電話でのお問い合わせは0120-063-630(携帯・PHS可)
兼六不動産株式会社
東京都練馬区大泉学園町1丁目29-7
営業時間:AM9:00~PM8:00/定休日:年末年始のみ
免許番号:東京都知事(5)第83428号
兼六グループの兼六不動産株式会社

練馬区を中心に確かな不動産情報をスピーディーにお伝え致します。住まいの事ならどんな事でもお気軽にご相談下さい。

接客力ランキング オンライン内見サービス

条件の近い新築一戸建て

最寄駅が東伏見駅の新築一戸建て

東伏見駅の新築一戸建ての一覧

新築一戸建て

西東京市中町6丁目 5,380万円
西東京市中町6丁目
5,380万円
西武新宿線 東伏見駅

新築一戸建て

西東京市富士町2丁目 7,699万円
西東京市富士町2丁目
7,699万円
西武新宿線 東伏見駅

新築一戸建て

練馬区関町北3丁目 6,480万円
練馬区関町北3丁目
6,480万円
西武新宿線 東伏見駅

新築一戸建て

練馬区南大泉2丁目 5,780万円
練馬区南大泉2丁目
5,780万円
西武新宿線 東伏見駅

同じ西東京市中町の新築一戸建て

西東京市中町の新築一戸建ての一覧

新築一戸建て

西東京市中町6丁目 5,380万円
西東京市中町6丁目
5,380万円
西武新宿線 東伏見駅

新築一戸建て

西東京市中町1丁目 4,790万円
西東京市中町1丁目
4,790万円
西武池袋線 保谷駅

新築一戸建て

西東京市中町1丁目 4,390万円
西東京市中町1丁目
4,390万円
西武池袋線 保谷駅

同じ西東京市で同じ価格帯4,000~4,500万円の新築一戸建て

西東京市の同価格帯の新築一戸建ての一覧

新築一戸建て

西東京市泉町3丁目 4,490万円
西東京市泉町3丁目
4,490万円
西武新宿線 西武柳沢駅

新築一戸建て

西東京市中町1丁目 4,390万円
西東京市中町1丁目
4,390万円
西武池袋線 保谷駅

新築一戸建て

西東京市泉町3丁目 4,490万円
西東京市泉町3丁目
4,490万円
西武新宿線 西武柳沢駅
現地見学会(オープンハウス)情報
オープンハウス情報を全て見る

6月21日(土) ~ 11月30日(日)

≪見学30分~≫全棟4LDK&ZEH水準&床暖房&食洗機!
練馬区大泉学園町で家族と一緒に新しく、永く住まう棲家

7月1日(火) ~ 9月30日(水)

練馬区谷原4丁目の石神井公園の家
石神井公園駅・光ヶ丘駅の2駅利用可
お客様の声
ご希望条件を登録しておいていただければ、条件に合った物件が売りに出た際に、どこよりも早く、自動的にご指定のアドレスに通知が届きます。

西東京市中町4丁目の新築一戸建ての不動産探しは兼六不動産株式会社

兼六不動産のホームページに掲載されている不動産以外にも、西東京市中町4丁目の新築一戸建ての会員限定情報があるかもしれません。是非お気軽にお問い合わせください。
又、東伏見駅周辺の不動産はもちろん、西武新宿線沿線の不動産情報も数多く掲載しております。さらに、エリア検索や駅検索以外にも、リビング15畳以上、ワイド・ルーフバルコニー付き、公園まで徒歩10分以内、駐車場2台以上、最寄駅から徒歩10分以内などのこだわりのテーマでも西東京市中町4丁目の不動産を検索出来ますので、是非兼六不動産のホームページをご活用いただき、理想の不動産を見つけてください。
尚、なかなかお目当ての不動産が見付からない場合やこだわりの条件がある場合など、当社にご条件をお伝え頂けば、西東京市中町4丁目の会員限定情報も含めて、誠心誠意探させて頂きます。お気軽に、メール、またはお電話を頂ければ幸いです。
その他、西東京市中町4丁目の小学校・中学校などの学区情報も掲載しておりますので、併せてご参考にしてください。

建ぺい率とは

建ぺい率とは敷地面積に対する建築面積の割合のことです。つまりその敷地に対してどれくらいの規模の建物が建てられるか、また、逆にどれくらいの空き地を確保しなければならないのか、という割合のことで用途地域ごとに制限されています。
建ぺい率が高ければ敷地いっぱいに建物を建てることが可能です。逆に低ければ敷地に空いているスペースを多く設けなければいけません。住居系の用途地域は比較的建ぺい率が低く、商業系の用途地域は建ぺい率が高くなっています。

容積率とは

容積率とは敷地面積に対する建物の延床面積の割合のことです。つまり、その敷地に対してどれくらいの規模(床面積)の建物が建てられるか、という割合のことで、これも建ぺい率と同じく用途地域ごとに制限されています。
容積率100%の地域で、敷地面積50坪の場合、延べ床面積50坪まで建てられることになります。

用途地域とは

都市の土地利用計画の一つで、第1種低層住居専用地域から工業専用地域までの12種類の用途地域が定められており、地域ごとに建築可能な建築物の用途を制限しております。周辺環境を知る目安にもなります。

接道とは

接道とは、その土地と接している道路の事を指します。接道の問題は、土地探しにおいて重要な問題であり、建築基準法上の道路として認められた道と、土地が接することで、建物を建てられる土地になります。

権利種類とは

対象物件の敷地が「所有権」「賃借権・地上権」「定期借地権」のいずれにあてはまるかを表します。

QRコード