2,480 万円
東久留米市
柳窪
西武新宿線 小平駅
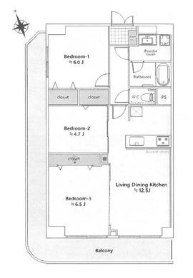
| 間取り | : 2LDK |
|---|---|
| 専有面積 | :
|
| バルコニー面積 | :
|
| 階/階建て | :
|
| 築年数 | :
|

















