4,199 万円
練馬区
豊玉北2丁目
都営大江戸線 新江古田駅
徒歩5分
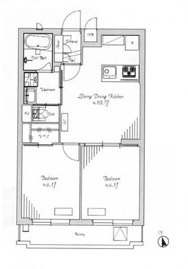
| 間取り | : 2LDK |
|---|---|
| 専有面積 | : 48.96m² |
| バルコニー面積 | : 4.00m² |
| 階/階建て | : 11階部分 / 12階建て |
| 築年数 | : 1980年10月築(築45年) |
- お問い合わせ
- フリーダイヤル:0120-063-630
- この物件のお知らせを受け取る
- 値下げ速報メール登録
マイリストに追加する
















