売地 東久留米市下里2丁目

取引有効期限:2026/02/12   物件更新日:2026/01/21   次回更新予定日:2026/02/05   物件No.28852

整形地 / 陽当り良好

内覧か来社でJCBギフトカード1000円分プレゼント

こちらは最寄り駅「西武池袋線 東久留米駅」までバス8分・停歩2分の売り地のご紹介です。
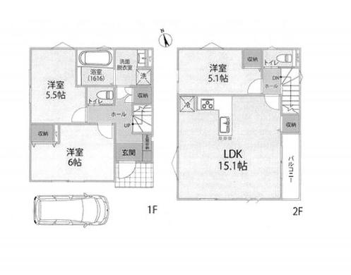
◆建物見積り作成&間取り相談OK◆
【建物参考プラン有】
□建築条件付

<ライフインフォメーション>
学区域:第七小学校・下里中学校


※土日平日問わず現地へのご案内や、資金計画表の作成相談できます。「来店予約」「見学予約」からお申込みください※

所在地 東京都東久留米市下里2丁目 建築条件 有り
交通 西武池袋線 東久留米駅 バス8分 前沢4丁目 徒歩2分 その他交通 西武新宿線 花小金井駅 バス7分 前沢4丁目 徒歩2分
土地面積 69.19m²(20.93坪) 引渡条件
価格 1,680万円(坪80.3万円) 借地料
地目 宅地 用途地域はてな 第一種低層住居専用地域
建ぺい率はてな 60% 容積率はてな 150%
区画数 引渡時期 相談
都市計画 権利種類はてな 所有権
接道はてな 東4.0M道路 取引態様 媒介
その他
お急ぎの場合はお電話にてご連絡ください。
お電話でのお問い合わせは0120-063-630(携帯・PHS可)
兼六不動産株式会社
東京都練馬区大泉学園町1丁目29-7
営業時間:AM9:00~PM8:00/定休日:年末年始のみ
免許番号:東京都知事(5)第83428号
兼六グループの兼六不動産株式会社

練馬区を中心に確かな不動産情報をスピーディーにお伝え致します。住まいの事ならどんな事でもお気軽にご相談下さい。

接客力ランキング オンライン内見サービス

クイック問い合わせ

30秒で簡単に入力ができます

プライバシーポリシー必須は必須項目になります

お問い合わせ内容必須
(複数選択可)
お名前(漢字)必須
お名前(フリガナ)
メールアドレス必須
電話番号必須
ご住所
〒   - 
備考欄

ご希望の条件、物件案内ご希望日、ご質問などがございましたらご記入ください。

確認画面へ

※価格は物件の代金総額を表示しており、消費税が課税される場合は税込み価格です。(1000円未満は切り上げ。)
※完成予想図はいずれも外構、植栽、外観等実際のものとは多少異なることがあります。
※CG合成の画像の場合、実際とは多少異なる場合があります。
※購入の前には物件内容や契約条件についてご自身で十分な確認をしていただくようにお願いいたします。

条件の近い土地

最寄駅が東久留米駅の土地

東久留米駅の土地の一覧

new土地

新座市石神4丁目 2,490万円
新座市石神4丁目
2,490万円
西武池袋線 東久留米駅

new土地

新座市石神4丁目 2,490万円
新座市石神4丁目
2,490万円
西武池袋線 東久留米駅

new土地

新座市石神4丁目 2,790万円
新座市石神4丁目
2,790万円
西武池袋線 東久留米駅

new土地

新座市石神4丁目 3,090万円
新座市石神4丁目
3,090万円
西武池袋線 東久留米駅
現地見学会(オープンハウス)情報
オープンハウス情報を全て見る

7月1日(火) ~ 9月30日(水)

練馬区谷原4丁目の石神井公園の家
石神井公園駅・光ヶ丘駅の2駅利用可

9月27日(土) ~ 3月30日(月)

現地販売会開催中
お客様の声
ご希望条件を登録しておいていただければ、条件に合った物件が売りに出た際に、どこよりも早く、自動的にご指定のアドレスに通知が届きます。

東久留米市下里2丁目の土地の不動産探しは兼六不動産株式会社

兼六不動産のホームページに掲載されている不動産以外にも、東久留米市下里2丁目の土地の会員限定情報があるかもしれません。是非お気軽にお問い合わせください。
又、東久留米駅周辺の不動産はもちろん、西武池袋線沿線の不動産情報も数多く掲載しております。さらに、エリア検索や駅検索以外にも、リビング15畳以上、ワイド・ルーフバルコニー付き、公園まで徒歩10分以内、駐車場2台以上、最寄駅から徒歩10分以内などのこだわりのテーマでも東久留米市下里2丁目の不動産を検索出来ますので、是非兼六不動産のホームページをご活用いただき、理想の不動産を見つけてください。
尚、なかなかお目当ての不動産が見付からない場合やこだわりの条件がある場合など、当社にご条件をお伝え頂けば、東久留米市下里2丁目の会員限定情報も含めて、誠心誠意探させて頂きます。お気軽に、メール、またはお電話を頂ければ幸いです。
その他、東久留米市下里2丁目の小学校・中学校などの学区情報も掲載しておりますので、併せてご参考にしてください。

建ぺい率とは

建ぺい率とは敷地面積に対する建築面積の割合のことです。つまりその敷地に対してどれくらいの規模の建物が建てられるか、また、逆にどれくらいの空き地を確保しなければならないのか、という割合のことで用途地域ごとに制限されています。
建ぺい率が高ければ敷地いっぱいに建物を建てることが可能です。逆に低ければ敷地に空いているスペースを多く設けなければいけません。住居系の用途地域は比較的建ぺい率が低く、商業系の用途地域は建ぺい率が高くなっています。

容積率とは

容積率とは敷地面積に対する建物の延床面積の割合のことです。つまり、その敷地に対してどれくらいの規模(床面積)の建物が建てられるか、という割合のことで、これも建ぺい率と同じく用途地域ごとに制限されています。
容積率100%の地域で、敷地面積50坪の場合、延べ床面積50坪まで建てられることになります。

用途地域とは

都市の土地利用計画の一つで、第1種低層住居専用地域から工業専用地域までの12種類の用途地域が定められており、地域ごとに建築可能な建築物の用途を制限しております。周辺環境を知る目安にもなります。

接道とは

接道とは、その土地と接している道路の事を指します。接道の問題は、土地探しにおいて重要な問題であり、建築基準法上の道路として認められた道と、土地が接することで、建物を建てられる土地になります。

権利種類とは

対象物件の敷地が「所有権」「賃借権・地上権」「定期借地権」のいずれにあてはまるかを表します。

QRコード