5,980 万円
練馬区
高野台1丁目
西武池袋線 練馬高野台駅
徒歩5分
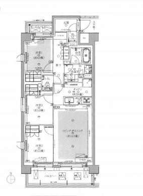
| 間取り | : 3LDK |
|---|---|
| 専有面積 | : 66.74m² |
| バルコニー面積 | : 23.24m² |
| 階/階建て | : 2階部分 / 7階建て |
| 築年数 | : 2005年2月築(築21年) |
- お問い合わせ
- フリーダイヤル:0120-063-630
- この物件のお知らせを受け取る
- 値下げ速報メール登録
マイリストに追加する

















