-
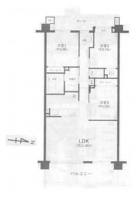
間取り図 -
新座市立栗原小学校 -
新座市立第五中学校 -
ひばりヶ丘駅は急行停車駅、乗車15分で池袋に通えます。駅前にはパルコとSEIYUがあり、都心に出ずとも近場で買い物が済むので便利な街です。 -
【西武池袋線 停車駅ご案内図】 飯能から池袋までを繋ぐ私鉄沿線。(練馬駅まで)地下鉄有楽町線・副都心線に直通で通えたり、「池袋駅」から様々な方面へ通えるのが特徴の路線です。 -
お料理中も会話が弾む、カウンター付きの対面式キッチンを採用。出来上がったお料理の受け渡しや食後の片付けもスムーズ。また家事をしながらリビングのお子様やご家族の様子を眺められます。 -
太陽の光は南側から降り注いてくるので、南側にバルコニーがあることにより室内に明るい日差しを取り入れることができます。
3,399 万円
新座市
栗原1丁目
西武池袋線 ひばりヶ丘駅
徒歩22分
| 間取り | : 2SLDK |
|---|---|
| 専有面積 | : 69.92m² |
| バルコニー面積 | : 8.96m² |
| 階/階建て | : 9階部分 / 9階建て |
| 築年数 | : 1995年1月築(築30年) |
- お問い合わせ
- フリーダイヤル:0120-063-630
- この物件のお知らせを受け取る
- 値下げ速報メール登録
マイリストに追加する



















