売地 練馬区富士見台23目

取引有効期限:2025/12/03   物件更新日:2025/11/17   次回更新予定日:2025/12/02   物件No.38610

陽当り良好 / 低層住居専用地域

内覧か来社でJCBギフトカード1000円分プレゼント

こちらは総区画3区の1つで、最寄り駅「西武池袋線 富士見台駅」まで徒歩11分の売り地のご紹介です。

◇現況更地
◇ハウスメーカー自由◇

■建築条件なし
■富士見台駅徒歩11分
■第一種底層専用地域

*周辺環境*
・富士見台小学校 徒歩9分
・石神井東中学校 徒歩11分
・しまむら 徒歩14分
・西友 徒歩13分
・南光幼稚園 徒歩5分
・セブンイレブン 徒歩5分

※土日平日問わず現地へのご案内や、資金計画表の作成相談できます。「来店予約」「見学予約」からお申込みください※

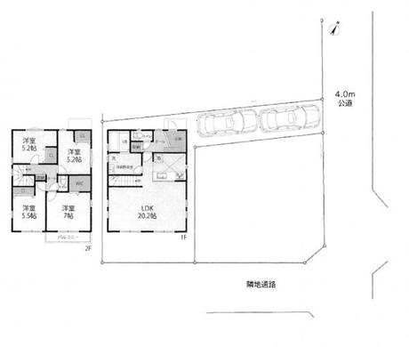
所在地 東京都練馬区富士見台3丁目 建築条件 無し
交通 西武池袋線 富士見台駅 徒歩11分 その他交通 西武池袋線 練馬高野台駅 徒歩12分
土地面積 118.35m²(35.80坪) 引渡条件
価格 6,599万円(坪184.3万円) 借地料
地目 宅地 用途地域はてな 第一種低層住居専用地域
建ぺい率はてな 50% 容積率はてな 100%
区画数 今回販売 1区画/全 3区画 引渡時期
都市計画 権利種類はてな 所有権
接道はてな 東4.0M道路 取引態様 媒介
小学校区 練馬区立南が丘小学校:徒歩12分(890m) 中学校区 練馬区立南が丘中学校:徒歩10分(761m)
その他周辺環境
モール
髪遊 エミオ練馬高野台店:徒歩10分(796m)
コンビニ
セブンイレブン 練馬南田中3丁目店:徒歩3分(178m)
スーパー
サミットストア 環八南田中店:徒歩6分(437m)
幼稚園・保育園
青い鳥保育園:徒歩4分(308m)
総合病院
薬師堂診療所:徒歩2分(147m)
内科
うちだ内科クリニック:徒歩4分(250m)
小児科
池田医院:徒歩11分(804m)
歯科
たけした歯科:徒歩6分(451m)
動物病院
さくら動物病院:徒歩3分(170m)
市・区役所
練馬区役所 サンライフ練馬:徒歩26分(2050m)
その他
お急ぎの場合はお電話にてご連絡ください。
お電話でのお問い合わせは0120-063-630(携帯・PHS可)
兼六不動産株式会社
東京都練馬区大泉学園町1丁目29-7
営業時間:AM9:00~PM8:00/定休日:年末年始のみ
免許番号:東京都知事(5)第83428号
兼六グループの兼六不動産株式会社

練馬区を中心に確かな不動産情報をスピーディーにお伝え致します。住まいの事ならどんな事でもお気軽にご相談下さい。

接客力ランキング オンライン内見サービス

クイック問い合わせ

30秒で簡単に入力ができます

プライバシーポリシー必須は必須項目になります

お問い合わせ内容必須
(複数選択可)
お名前(漢字)必須
お名前(フリガナ)
メールアドレス必須
電話番号必須
ご住所
〒   - 
備考欄

ご希望の条件、物件案内ご希望日、ご質問などがございましたらご記入ください。

確認画面へ

※価格は物件の代金総額を表示しており、消費税が課税される場合は税込み価格です。(1000円未満は切り上げ。)
※完成予想図はいずれも外構、植栽、外観等実際のものとは多少異なることがあります。
※CG合成の画像の場合、実際とは多少異なる場合があります。
※購入の前には物件内容や契約条件についてご自身で十分な確認をしていただくようにお願いいたします。

条件の近い土地

最寄駅が富士見台駅の土地

富士見台駅の土地の一覧

土地

練馬区富士見台3丁目 6,999万円
練馬区富士見台3丁目
6,999万円
西武池袋線 富士見台駅

同じ練馬区富士見台の土地

練馬区富士見台の土地の一覧

土地

練馬区富士見台3丁目 6,999万円
練馬区富士見台3丁目
6,999万円
西武池袋線 富士見台駅

同じ練馬区で同じ価格帯6,500~7,000万円の土地

練馬区の同価格帯の土地の一覧

土地

練馬区高松6丁目 6,940万円
練馬区高松6丁目
6,940万円
都営大江戸線 光が丘駅

土地

練馬区高松6丁目 6,640万円
練馬区高松6丁目
6,640万円
都営大江戸線 光が丘駅

土地

練馬区高松6丁目 6,640万円
練馬区高松6丁目
6,640万円
都営大江戸線 光が丘駅

土地

練馬区小竹町2丁目 6,580万円
練馬区小竹町2丁目
6,580万円
東京メトロ有楽町線 小竹向原駅
現地見学会(オープンハウス)情報
オープンハウス情報を全て見る

7月1日(火) ~ 9月30日(水)

練馬区谷原4丁目の石神井公園の家
石神井公園駅・光ヶ丘駅の2駅利用可

7月20日(日) ~ 12月31日(水)

現地案内会と建物相談会
お客様の声
ご希望条件を登録しておいていただければ、条件に合った物件が売りに出た際に、どこよりも早く、自動的にご指定のアドレスに通知が届きます。

練馬区富士見台3丁目の土地の不動産探しは兼六不動産株式会社

兼六不動産のホームページに掲載されている不動産以外にも、練馬区富士見台3丁目の土地の会員限定情報があるかもしれません。是非お気軽にお問い合わせください。
又、富士見台駅周辺の不動産はもちろん、西武池袋線沿線の不動産情報も数多く掲載しております。さらに、エリア検索や駅検索以外にも、リビング15畳以上、ワイド・ルーフバルコニー付き、公園まで徒歩10分以内、駐車場2台以上、最寄駅から徒歩10分以内などのこだわりのテーマでも練馬区富士見台3丁目の不動産を検索出来ますので、是非兼六不動産のホームページをご活用いただき、理想の不動産を見つけてください。
尚、なかなかお目当ての不動産が見付からない場合やこだわりの条件がある場合など、当社にご条件をお伝え頂けば、練馬区富士見台3丁目の会員限定情報も含めて、誠心誠意探させて頂きます。お気軽に、メール、またはお電話を頂ければ幸いです。
その他、練馬区富士見台3丁目の小学校・中学校などの学区情報も掲載しておりますので、併せてご参考にしてください。

建ぺい率とは

建ぺい率とは敷地面積に対する建築面積の割合のことです。つまりその敷地に対してどれくらいの規模の建物が建てられるか、また、逆にどれくらいの空き地を確保しなければならないのか、という割合のことで用途地域ごとに制限されています。
建ぺい率が高ければ敷地いっぱいに建物を建てることが可能です。逆に低ければ敷地に空いているスペースを多く設けなければいけません。住居系の用途地域は比較的建ぺい率が低く、商業系の用途地域は建ぺい率が高くなっています。

容積率とは

容積率とは敷地面積に対する建物の延床面積の割合のことです。つまり、その敷地に対してどれくらいの規模(床面積)の建物が建てられるか、という割合のことで、これも建ぺい率と同じく用途地域ごとに制限されています。
容積率100%の地域で、敷地面積50坪の場合、延べ床面積50坪まで建てられることになります。

用途地域とは

都市の土地利用計画の一つで、第1種低層住居専用地域から工業専用地域までの12種類の用途地域が定められており、地域ごとに建築可能な建築物の用途を制限しております。周辺環境を知る目安にもなります。

接道とは

接道とは、その土地と接している道路の事を指します。接道の問題は、土地探しにおいて重要な問題であり、建築基準法上の道路として認められた道と、土地が接することで、建物を建てられる土地になります。

権利種類とは

対象物件の敷地が「所有権」「賃借権・地上権」「定期借地権」のいずれにあてはまるかを表します。

QRコード