7,480 万円
練馬区
高野台
西武池袋線 練馬高野台駅
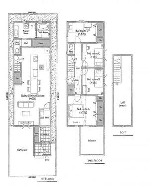
| 土地面積 | :
|
|---|---|
| 建築条件 | : 有り |
| 権利種類 | : 所有権 |
- お問い合わせ
- フリーダイヤル:0120-063-630
- この物件のお知らせを受け取る
- 値下げ速報メール登録









