3,590 万円
朝霞市
溝沼
武蔵野線 北朝霞駅
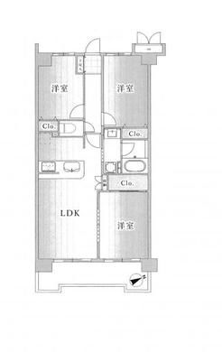
| 間取り | : 3LDK |
|---|---|
| 専有面積 | :
|
| 階/階建て | :
|
| 築年数 | :
|
- お問い合わせ
- フリーダイヤル:0120-063-630
- この物件のお知らせを受け取る
- 値下げ速報メール登録














