新築戸建 練馬区石神井台3丁目

取引有効期限:2026/04/20   物件更新日:2026/03/29   次回更新予定日:2026/04/13   物件No.39781

LDK15帖以上 / ウォークインクローゼット / 食器洗浄機 / 浴室暖房乾燥機 / 陽当り良好 / システムキッチン / シャンプードレッサ / バストイレ別 / カウンターキッチン / トイレ2ヶ所 / フルオートバス / 浄水器 / 洗髪洗面化粧台 / ディンプルキー / モニター付インターホン / ペアガラス / シャッター雨戸 / 閑静な住宅街 / 24時間換気システム / バス1坪以上

内覧か来社でJCBギフトカード1000円分プレゼント

こちらは、総棟数3棟の1つで、最寄り駅「西武池袋線 大泉学園駅」まで、徒歩15分の新築戸建のご紹介です。
< モデルハウス・完成物件のご見学承ります >


■便利と穏やかさが両立できる町
■家事動線が短い家事楽プランで効率よく、快適な邸宅
■安心の地盤20年保証
■LDKは吹き抜けや勾配天井で解放感を演出

*周辺環境*
・上石神井北小学校 徒歩7分
・石神井中学校 徒歩10分
・石神井台第二保育園 徒2分
・クリエイトSD 徒歩2分
・ファミリーマート 徒歩5分
・ローソン 徒歩8分
・石神井松の風文化公園 徒歩8分
・生活クラブ 徒歩10分
・郵便局 徒歩8分

※土日平日問わず現地やモデルハウスへご案内できます。「来店予約」「見学予約」からお申込みください※

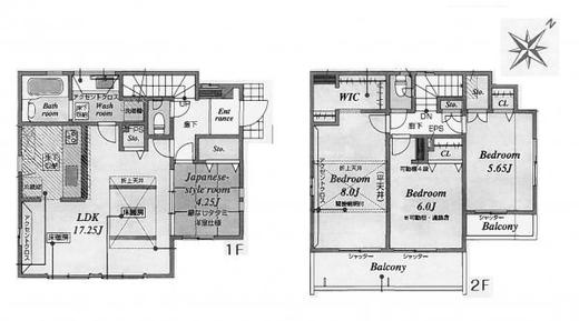
所在地 東京都練馬区石神井台3丁目 間取り 3SLDK
交通 西武池袋線 大泉学園駅 徒歩15分 その他交通
土地面積 78.99m² 建物面積 99.41m²
駐車スペース あり(円/月) 構造・規模 木造 2階建 (地上2階)
価格 7,680万円 借地料
販売戸数 今回販売 1棟/全 3棟 完成時期・築年・入居 2026年6月入居予定相談
引渡時期 相談 国土法届出 不要
地目 宅地 用途地域はてな 第一種低層住居専用地域
建ぺい率はてな 50% 容積率はてな 100%
都市計画 権利種類はてな 所有権
接道はてな 北4.0M道路 取引態様 媒介
小学校区 練馬区立上石神井北小学校:徒歩14分(1120m) 中学校区 練馬区立石神井中学校:徒歩7分(485m)
その他周辺環境
モール
Grand Emio OIZUMI-GAKUEN(グランエミオ大泉学園):徒歩12分(904m)
コンビニ
ファミリーショップしおや:徒歩4分(296m)
スーパー
まいばすけっと 石神井町7丁目店:徒歩10分(744m)
幼稚園・保育園
心羽えみの保育園石神井台:徒歩8分(582m)
公園1
石神井松の風文化公園:徒歩6分(476m)
公園2
石神井公園:徒歩12分(892m)
総合病院
まつのぶ小児クリニック:徒歩8分(585m)
内科
各務内科医院:徒歩12分(940m)
小児科
わたなべこどもクリニック:徒歩11分(849m)
歯科
ないとう歯科医院:徒歩3分(226m)
動物病院
石神井公園動物病院:徒歩5分(362m)
市・区役所
子育てのひろば 大泉ぴよぴよ:徒歩8分(582m)
その他
お急ぎの場合はお電話にてご連絡ください。
お電話でのお問い合わせは0120-063-630(携帯・PHS可)
兼六不動産株式会社
東京都練馬区大泉学園町1丁目29-7
営業時間:AM9:00~PM8:00/定休日:年末年始のみ
免許番号:東京都知事(5)第83428号
兼六グループの兼六不動産株式会社

練馬区を中心に確かな不動産情報をスピーディーにお伝え致します。住まいの事ならどんな事でもお気軽にご相談下さい。

接客力ランキング オンライン内見サービス

クイック問い合わせ

30秒で簡単に入力ができます

プライバシーポリシー必須は必須項目になります

お問い合わせ内容必須
(複数選択可)
お名前(漢字)必須
お名前(フリガナ)
メールアドレス必須
電話番号必須
ご住所
〒   - 
備考欄

ご希望の条件、物件案内ご希望日、ご質問などがございましたらご記入ください。

確認画面へ

※価格は物件の代金総額を表示しており、消費税が課税される場合は税込み価格です。(1000円未満は切り上げ。)
※完成予想図はいずれも外構、植栽、外観等実際のものとは多少異なることがあります。
※CG合成の画像の場合、実際とは多少異なる場合があります。
※購入の前には物件内容や契約条件についてご自身で十分な確認をしていただくようにお願いいたします。

条件の近い新築一戸建て

最寄駅が大泉学園駅の新築一戸建て

大泉学園駅の新築一戸建ての一覧

新築一戸建て

新座市栄4丁目 5,480万円
新座市栄4丁目
5,480万円
西武池袋線 大泉学園駅

新築一戸建て

新座市栄5丁目 3,380万円
新座市栄5丁目
3,380万円
西武池袋線 大泉学園駅

新築一戸建て

新座市池田3丁目 3,686万円
新座市池田3丁目
3,686万円
西武池袋線 大泉学園駅

new新築一戸建て

新座市栄4丁目 3,280万円
新座市栄4丁目
3,280万円
西武池袋線 大泉学園駅

同じ練馬区石神井台の新築一戸建て

練馬区石神井台の新築一戸建ての一覧

新築一戸建て

練馬区石神井台5丁目 9,399万円
練馬区石神井台5丁目
9,399万円
西武新宿線 上石神井駅

新築一戸建て

練馬区石神井台8丁目 8,180万円
練馬区石神井台8丁目
8,180万円
西武新宿線 武蔵関駅

新築一戸建て

練馬区石神井台3丁目 7,280万円
練馬区石神井台3丁目
7,280万円
西武池袋線 大泉学園駅

同じ練馬区で同じ価格帯7,500~8,000万円の新築一戸建て

練馬区の同価格帯の新築一戸建ての一覧

新築一戸建て

練馬区貫井3丁目 7,599万円
練馬区貫井3丁目
7,599万円
西武池袋線 富士見台駅

新築一戸建て

練馬区土支田3丁目 7,699万円
練馬区土支田3丁目
7,699万円
都営大江戸線 光が丘駅

新築一戸建て

練馬区田柄4丁目 7,590万円
練馬区田柄4丁目
7,590万円
都営大江戸線 光が丘駅

新築一戸建て

練馬区南田中4丁目 7,980万円
練馬区南田中4丁目
7,980万円
西武池袋線 練馬高野台駅
現地見学会(オープンハウス)情報
オープンハウス情報を全て見る

3月1日(日) ~ 5月31日(日)

19.25帖の広々LDKはご家族が自然と集まる憩いの空間
3SLDK+ウォーク・イン・クローゼット

3月1日(日) ~ 6月30日(火)

練馬区谷原4丁目の石神井公園の家
石神井公園駅・光ヶ丘駅の2駅利用可
お客様の声
ご希望条件を登録しておいていただければ、条件に合った物件が売りに出た際に、どこよりも早く、自動的にご指定のアドレスに通知が届きます。

練馬区石神井台3丁目の新築一戸建ての不動産探しは兼六不動産株式会社

兼六不動産のホームページに掲載されている不動産以外にも、練馬区石神井台3丁目の新築一戸建ての会員限定情報があるかもしれません。是非お気軽にお問い合わせください。
又、大泉学園駅周辺の不動産はもちろん、西武池袋線沿線の不動産情報も数多く掲載しております。さらに、エリア検索や駅検索以外にも、リビング15畳以上、ワイド・ルーフバルコニー付き、公園まで徒歩10分以内、駐車場2台以上、最寄駅から徒歩10分以内などのこだわりのテーマでも練馬区石神井台3丁目の不動産を検索出来ますので、是非兼六不動産のホームページをご活用いただき、理想の不動産を見つけてください。
尚、なかなかお目当ての不動産が見付からない場合やこだわりの条件がある場合など、当社にご条件をお伝え頂けば、練馬区石神井台3丁目の会員限定情報も含めて、誠心誠意探させて頂きます。お気軽に、メール、またはお電話を頂ければ幸いです。
その他、練馬区石神井台3丁目の小学校・中学校などの学区情報も掲載しておりますので、併せてご参考にしてください。

建ぺい率とは

建ぺい率とは敷地面積に対する建築面積の割合のことです。つまりその敷地に対してどれくらいの規模の建物が建てられるか、また、逆にどれくらいの空き地を確保しなければならないのか、という割合のことで用途地域ごとに制限されています。
建ぺい率が高ければ敷地いっぱいに建物を建てることが可能です。逆に低ければ敷地に空いているスペースを多く設けなければいけません。住居系の用途地域は比較的建ぺい率が低く、商業系の用途地域は建ぺい率が高くなっています。

容積率とは

容積率とは敷地面積に対する建物の延床面積の割合のことです。つまり、その敷地に対してどれくらいの規模(床面積)の建物が建てられるか、という割合のことで、これも建ぺい率と同じく用途地域ごとに制限されています。
容積率100%の地域で、敷地面積50坪の場合、延べ床面積50坪まで建てられることになります。

用途地域とは

都市の土地利用計画の一つで、第1種低層住居専用地域から工業専用地域までの12種類の用途地域が定められており、地域ごとに建築可能な建築物の用途を制限しております。周辺環境を知る目安にもなります。

接道とは

接道とは、その土地と接している道路の事を指します。接道の問題は、土地探しにおいて重要な問題であり、建築基準法上の道路として認められた道と、土地が接することで、建物を建てられる土地になります。

権利種類とは

対象物件の敷地が「所有権」「賃借権・地上権」「定期借地権」のいずれにあてはまるかを表します。

QRコード