2,990 万円
朝霞市
三原
東武東上線 志木駅
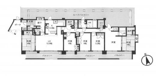
| 間取り | : 3LDK |
|---|---|
| 専有面積 | :
|
| バルコニー面積 | :
|
| 階/階建て | :
|
| 築年数 | :
|


















