6,680 万円
練馬区
南田中
西武新宿線 井荻駅
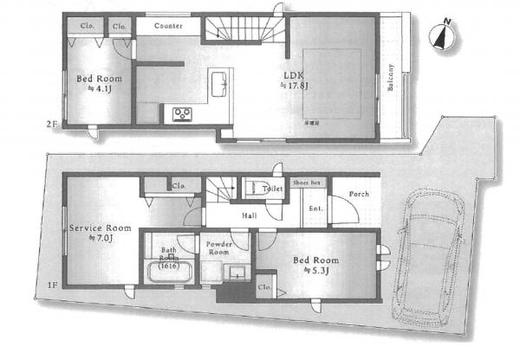
| 間取り | : 4LDK |
|---|---|
| 土地面積 | :
|
| 建物面積 | :
|
| 築年数 | :
|
- お問い合わせ
- フリーダイヤル:0120-063-630
- この物件のお知らせを受け取る
- 値下げ速報メール登録













