4,480 万円
和光市
新倉
東京メトロ有楽町線 和光市駅
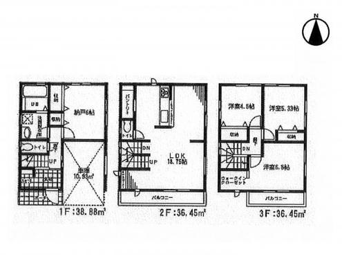
| 間取り | : 2SLDK |
|---|---|
| 土地面積 | :
|
| 建物面積 | :
|
| 築年数 | :
|
- お問い合わせ
- フリーダイヤル:0120-063-630
- この物件のお知らせを受け取る
- 値下げ速報メール登録












